62 411 ₽/м²
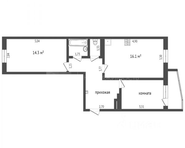
Продается просторная трехкомнатная квартира в новом кирпичном доме. Общая площадь 70.5 м² включает изолированные комнаты и кухню 10 м². Квартира расположена на втором этаже двухэтажного здания, что обеспечивает удобный доступ и отсутствие шума от лифтового оборудования. Высота потолков 2.7 метра создает ощущение простора. Квартира с ремонтом, что позволяет новому владельцу сразу заехать или выполнить дизайн-проект под свои предпочтения без необходимости ремонта. Дом построен по индивидуальному проекту с кирпичными стенами, что гарантирует высокую тепло- и звукоизоляцию. Прилегающая территория благоустроена, предусмотрена парковка. Район обладает развитой инфраструктурой: в шаговой доступности находятся магазины, аптеки и общественный транспорт. Это оптимальное предложение для тех, кто ищет современное жилье в тихом доме с потенциалом для создания семейного гнезда или выгодного долгосрочного вложения. МЫ ГАРАНТИРУЕМ ФИНАНСОВУЮ БЕЗОПАСНОСТЬ ДЛЯ НАШИХ КЛИЕНТОВ. Код пользователя: 163957 Номер в базе: 12177602













































































