165 313 ₽/м²
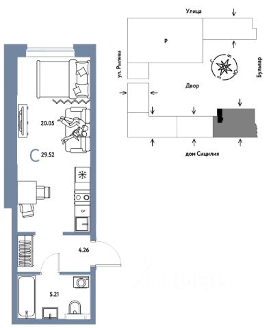
Продаётся студия в строящемся доме (Дом "Мальта" (ГП-1, Ярославская, 9к1)), срок сдачи: II-кв. 2027, общей площадью 30.79 кв.м., на 8 этаже. Новый жилой комплекс "Остров-сад" от Специализированного застройщика "Страна. Коммунистическая" расположен по адресу: г. Тюмень, по ул. Ярославская.


















































































