161 154 ₽/м²
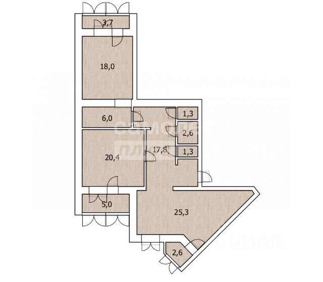
ТОЛЬКО У НАС! РЯДОМ ТРЦ КРИСТАЛЛ!! Квартира формата 3+ в кирпичном доме в современном ЖК в мкр-не Тюменский-2, в одном из самых популярных районов города! Квартира имеет массу преимуществ: 1. Просторная квартира - распашонка, площадью 117,9 м2 , позволяет с комфортом разместиться всем членам семьи и гостям. Окна на две стороны, что обеспечивает хорошее освещение. Два просторных балкона с теплым полом и гардеробная. Установлены современная системы и приборы освещения. 2. В квартире выполнен свежий ремонтом по дизайн-проекту в едином стиле в приятных тонах. Большая кухня гостиная 28,62 м2 грамотно зонирована на обеденную зону и зону отдыха. Оборудована кухонным гарнитуром со столешницей и раковиной из искусственного камня со встроенной бытовой техникой высокого класса (холодильник, морозильная камера Libher, духовой шкаф, СВЧ, варочная панель Krona, посудомоечная машина Smeg). Гостиную дополняет роскошный итальянский стол со стульями, и большой мягкий диван для просмотра ТВ. Три просторные спальни, правильной геометрической формы, площадью 14,43 м2, 19,1 м2, 18,95 м2 позволяют легко расставить мебель. с комфортом разместиться всем членам семьи. Все комнаты оснащены кондиционерами Electrolux, всего 4 шт. Два санузла в плитке, один из которых 7 м2 оснащен душевой кабиной с эффектом сауны, стиральной машиной Smeg, водонагревателем на 70 л, тепловым счетчиком. 3. Расположение дома наиудачнейшее, в близи есть абсолютно все, необходимое для жизни: - в 5 минутах ходьбы школа 92, детские сады 125, 186, медицинские, детские и развивающие центры, стоматологии ; - в шаговой доступности ТРЦ Кристалл, Остров, гипермаркеты Ашан, Лента; - множество магазинов, кафе, офисов, салонов красоты, отделений банка. 4. Отличная транспортная доступность позволяет легко доехать до любой точки города. Бонусом к квартире идет межэтажная хозяйственная комната. В квартиру можно заехать и жить, без дополнительных вложений. Остается все, что на фото, кроме большого ТВ. МЫ ГАРАНТИРУЕМ ФИНАНСОВУЮ БЕЗОПАСНОСТЬ ДЛЯ НАШИХ КЛИЕНТОВ. Код пользователя: 185619 Номер в базе: 10158265















































































