Просторная квартира 2 +, площадью 63 кв.м., в одном из самых востребованных ЖК "Сердце Сибири".
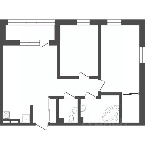
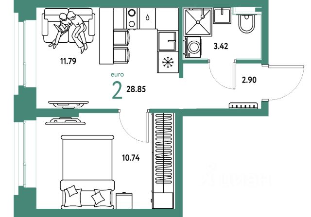
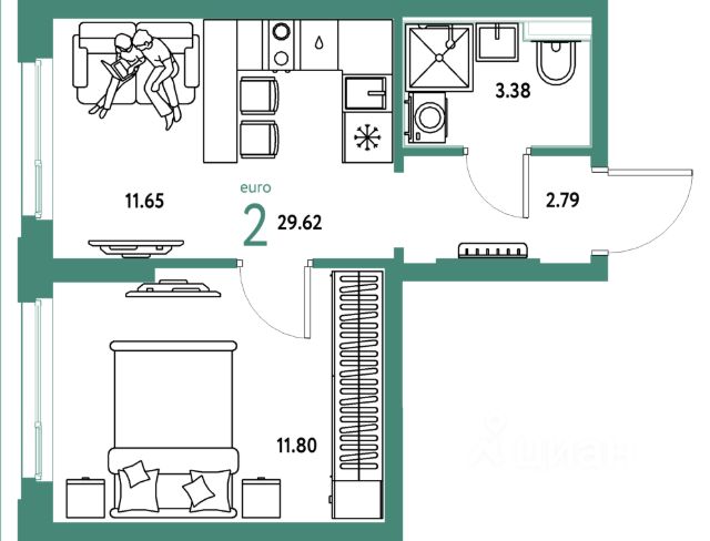
Планировка квартиры отличается продуманным расположением комнат: большая и светлая кухня-гостиная общей площадью 19,27 кв.м. и две спальни по 12 кв.м. Удобное расположение комнат, два сан.узла , ниша под гардеробную (3,5. Кв.м.). При выборе квартиры обращали внимание на определенные условия, - чтобы квартира была не угловая, а следовательно теплая, чтобы не было шума и пыли окна должны выходить во двор, и приятный вид из окна. Все эти моменты соблюдены. Все грязные работы выполнены, так как квартира с улучшенной чистовой отделкой: произведена разводка электричества и отопления; выполнена стяжка пола; стены выровнены "под маяк". В квартире установлены розетки, выключатели и радиаторы. На входе надежная стальная дверь. Вам остается только выбрать материалы и начать ремонт. Вы сможете дистанционно контролировать все процессы: вкл/выкл электричество, следить за датчиками протечек, перекрывать воду. Все устройства работают по Wi-Fi. Система будет сама предупреждать вас об изменениях в пространстве квартиры с помощью мобильного приложения.
О ЖИЛОМ КОМПЛЕКСЕ:
Жилой комплекс "Сердце Сибири" расположился в центре Тюмени в границах улиц 50 лет Октября-Пермякова-Харьковская. Проект включает 8 домов переменной этажности с многоуровневыми паркингами, большой бульвар для пеших прогулок и детсад. Квартал Газовиков - это 7 секций переменной этажности, 648 квартир, подземный паркинг и собственный закрытый двор. Внутри тихие дворы места для отдыха, игровые и релакс-зоны. Благодаря сквозным парадным во дворе нет машин. Защита от посторонних, служба охраны и видеонаблюдение 24/7 гарант безопасности вашей семьи. Вход в парадные с уровня земли, нет преград для передвижения, стильный дизайн с качественными материалами, высокоскоростные лифты, колясочная и зоны для хранения спортивного инвентаря.
В данном жилом комплексе застройщик создает камерный двор с уютным пространством под названием "Южная Тайга", которое будет являться местом для Вашего отдыха.
В самом центре "Сердца Сибири" через дома будет проходить пешеходный бульвар с зелеными насаждениями и арт-объектами, протяженностью 640 м. На территории отдыха: праздничная площадь, место выступлений, групповых занятий, обзорная площадка, место встреч, ярмарок, игровые и спорт зоны, точки уединения и различные кафе.
ОБ ИНФРАСТРУКТУРЕ:
ЖК "Сердце Сибири" находится в пешей доступности от Тюменского Индустриального Университета (бывший Нефтегазовый Университет). Также близко Медицинская Академия, офисы крупных компаний и офисные центры. Отличный вариант для семейной пары . Кстати, в отличие от других новых районов, здесь до школы и сада 5-7 минут пешком, а в перспективе новый детский сад внутри комплекса. Удобная транспортная развязка, готовая инфраструктура, детские сады, школы, университеты, магазины, торговые центры. До исторического центра на авто в час.пик 15 минут. Пешком можно спокойно догулять как до Текутьевского