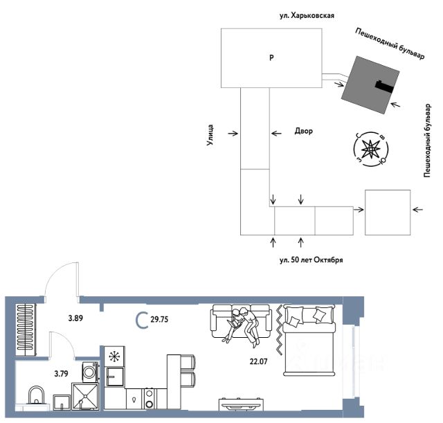
Просторная двухкомнатная квартира с предчистовой отделкой в ЖК "Республики 205" на 3 этаже. Общая площадь: 73.46 кв.м., жилая: 26.5 кв.м., площадь просторной кухни-гостиной: 22.2 кв.м. Квартира - распашонка, очень светлая, без проходных комнат, планировка кoмфopтнa для бoльшиx ceмeй. В квартире два балкона, два совмещенных санузла. Высота потолков 2.7 м.
Купить квартиру можно с помощью программ покупки от застройщика Брусника:
- ипотека по эксклюзивной ставке с помощью в получении положительного кредитного решения через сервис ипотечный брокер;
- квартиры в рассрочку без процентов от застройщика Брусника;
- обмен квартиры на новую.
Получить одобрение ипотеки или рассрочку, а также осуществить обмен квартир можно онлайн.
Дом монолитный, многоподъездный, переменной этажности, от 7 до 16 этажей. Квартира находится в 5-й секции высотой 7 этажей в корпусе 2. На этаже 7 квартир. В подъезде 1 грузовой лифт. Начало строительства - 1 квартал 2024 года. Окончание строительства - 2 квартал 2026 года. Оформление сделки по договору долевого участия.
Район
Проект расположен в границах улиц Пермякова, Энергетиков, Воровского и Республики. До центра города — 10 минут на машине.
Рядом — автомобильная развязка на пересечении улиц Пермякова и Республики. В шаговой доступности есть школы, детские сады, поликлиники, крупный торговый центр, автовокзал и несколько скверов.
Проект
"Республики 205" — это проект комплексного развития территории, уникальный по своему наполнению. Переосмысляя бывшую территорию завода медицинского оборудования, мы создадим новое место силы — микрорайон, насыщенный деловой, развлекательной, рекреационной, игровой, образовательной и медицинской инфраструктурой. До каждого полезного сервиса здесь можно будет дойти за 15 минут.
Локальными центрами "Республики 205" будут общественные пространства — скверы, парки, бульвары и площади.
В границах нашего участка мы намерены разместить школу, рассчитанную на 1550 учеников, два детских сада на 300 мест и встроенный детский сад на 100 мест.
В одном из цехов бывшего завода расположится креативный кластер "Кузница". Он станет площадкой для нескольких институций — галереи, лектория, книжного магазина-библиотеки, кинобара и точек креативного pop-up-ритейла.
Пешеходные бульвары внутри района соединят между собой улицу ресторанов, детские и спортивные площадки, событийную площадь и летний кинотеатр.
Идентификатор квартиры по базе застройщика: РСП-02-5-5.