


159 173 ₽/м²
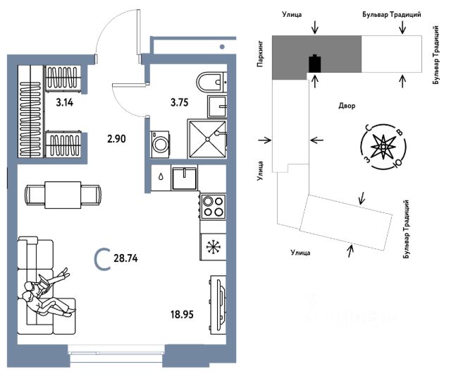
При покупке этой квартиры за наличный расчет предоставляется скидка 5% Прямая продажа от застройщика! Продается студия в строящемся ЖК "Меридиан Слобода", срок сдачи: I-кв. 2027, общей площадью 20.81 м², на 2 этаже из 21. Площадь кухни — 4.21 м². "Меридиан Слобода" расположен в южной части (зеленой зоне) Тюменской Слободы рядом со строящимся Комарово парком в границах улиц Заполярная и Спасская. В районе расположены все необходимые объекты социальной инфраструктуры. ЖК "Меридиан Слобода" состоит из двух домов переменной этажности от 15 до 20 с отделкой фасадов разной фактуры. Главная особенность ЖК — свой собственный хвойный сквер прямо во дворе. Территория сквера будет оформлена в минималистичном стиле, главное правило которого сохранение экосистемы и гармоничное встраивание объектов инфраструктуры в природную среду. Здесь будут дорожки из деревянных настилов, зоны отдыха, отель для птиц. Квартиры сдаются с предчистовой отделкой или с ремонтом. О возможности приобретения квартиры с ремонтом уточняйте у менеджеров отдела продаж. Преимущества ЖК: — тёплый тамбур с домофоном на второй двери — дизайнерское оформление подъездов — колясочная и парковка для велосипедов — лапомойка — кладовые на цокольном этаже со входом через подъезд — закрытый двор — зоны для игр и спорта во дворе




























































































































