209 205 ₽/м²
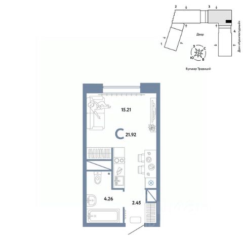
Продаётся студия в сданном доме (Новосёлов, 104 (Дом "Художественный" ГП-17)), срок сдачи: I-кв. 2026, общей площадью 21.51 кв.м., на 6 этаже. Новый микрорайон "Домашний" от группы компаний "Страна Девелопмент" расположен в Калининском округе Тюмени, в районе аэропорта "Плеханово".




























































































